((Title is a spoof of a neighboring town: Apex, NC. Aka, the peak of good living))
A couple weekends ago, cabin fever got the better of us. It had been below freezing for a record-setting number of days and you just can’t bring a baby out in weather like that. We also got rid of our cold weather gear when we moved down south almost a decade ago, so we were cooped up inside.
Turns out there was an RV show in Greensboro, so we warmed up the car and went for a drive. As a super-planner, I’ve been running comparisons on just about every travel trailer that falls into three mandatory categories. The RV must:
- Have an UVW at or below 4,000 lbs;
- Have at least two separate sleeping areas (not including the dinette); and
- Come in below our $15,000 budget
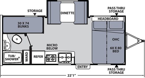
The only problem is that there are too many options to chose from. While there are about a dozen models that fit the big three must-haves above, the details set them all apart. In the end, we couldn’t find the **perfect** camper. So we compromised on the price and fixtures. Our final choice? The Apex Nano 193BHS!

This little camper has everything that we were looking for and more. It has a queen sized bed for us, bunk beds for our son, and is small enough to tow with my Grand Cherokee. We’re splurging with the slide-out dinette feature but it adds a couple of extra feet inside to make it feel slightly less cramped.

I love the large fridge and freezer, closed cabinetry, Bluetooth enabled stereo, and sink in the bathroom.
Now that we’ve settled on our adventure home, we need to iron out finances and talk business with the dealer. We’ll be signing papers once our 2017 taxes are done and we know if we’re getting a refund that we can put towards outfitting the camper.
In the meantime, you know I’ll be planning out camper accessories and researching campgrounds to explore. This summer should be jam-packed with fun!